To the main navigation

89537 Giengen an der Brenz, Obertorstraße 17 und 19

Beschreibung

Beschreibung

Gasthof bestehend aus dem zweigeschossigen, traufständigen Gasthaus (Nr. 19), dem rückseitig angebauten Brauhaus, sowie dem giebelständigen Saalbau (Nr. 17). Vorhanden ist eine umfangreiche Kelleranlage, bestehend aus zwei längsliegenden, tonnengewölbten Kellern, sowie einem querliegenden Raum, ebenfalls mit Tonnengewölbe im nördlichen Hausteil. Bei dem Brauereigebäude handelt es sich um einen hohen Backsteinbau mit Segmentbogenfenster, friesartig angeordneten Lüftungsöffnungen und abschließendes Zahnschnittgesims. Besonders hohen Gestaltungswert weist das zweigeschossige Saalgebäude (Nr. 17) auf. Im rückwärtigen Bereich schließt ein Biergarten an, der durch einen Stadtmauerrest begrenzt wird.

Das Objekt

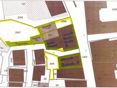
Stadtzentrum. Liegt im Sanierungsgebiet "Planie".

Grundstücksgröße:

ca. 795 m2 + 355 m2 Biergarten

Wohn-/Nutzfläche:

je nach Ausbau

Mögliche Nutzung:

Denkbar ist eine Nutzung zu Wohnzwecken und/oder gewerbliche und/oder gastronomische Nutzung

Baulicher Zustand:

sanierungsbedürftig. Bauaufnahme incl. Anmerkungen der Denkmalbehörden zu evtl. baulichen Veränderungen ist vorhanden.

Kaufpreis:

Verhandlungssache

Erstellt am: 16.10.2014

Kontakt

Kontakt

Stadt Giengen a. d. Brenz
Markstraße 18 - 20
89537 Giengen a. d. Brenz
07322 952-2475
E-Mail senden oder
E-Mail senden

 

Das Angebot liegt im Landkreis Heidenheim